Ligue (Whatsapp) (81)98181-4441

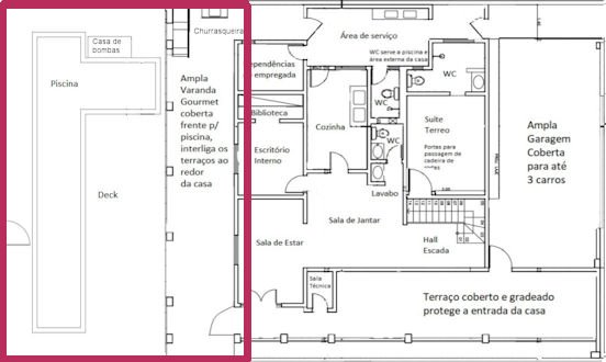
Veja detalhes da área de lazer da casa. Assinalado na planta abaixo como um retângulo vermelho destacada

Corresponde ao terraço, deck e piscina. Totalmente privativo para você e sua família.

Terraço amplo coberto e grande área de deck

Para o churrasco de final de semana

 Mesa de madeira maciça jaqueira. Churrasqueira completa com forno e fogão.

Piscina com raia de 12,5 metros

Excelente para aprender a nadar ou até para treinar natação para competição. Pode ser utilizada também como escolinha, ou somente para diversão da família. Apesar da extensão, o projeto foi calculado para conter um volume pequeno de água, com baixo custo de manutenção.

Forte ducha tipo cascata para hidro massagem

Chuveirão forte

Imagem de praia no muro compõem o ambiente agradável de lazer

Área para projeção no terraço a noite

Prainha com duchas de automassagem

Escada muito larga e anti-derrapante para maior segurança.

WC para uso da piscina